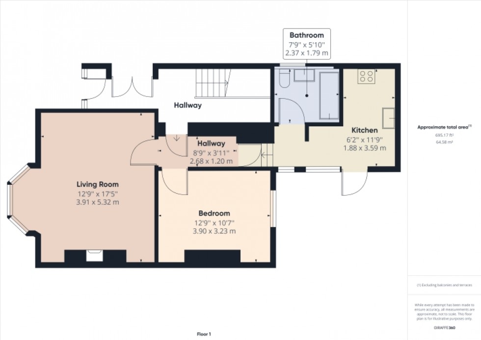
A prime opportunity to purchase a block of five separate and self contained apartments, within a characterful building, consisting of a mixture of one bedroom and two bedroom flats. This purchase would also include the freehold of the building so is the perfect chance to get on the investment ladder. Please call 01242 25 33 25 option 2 for more information.
CGT Investors' Club: Property Sales for Landlords
The CGT Investors' Club offers a unique and innovative approach to property sales across Gloucestershire and The Cotswolds, catering specifically to landlords. Specialising in landlord-to-landlord sales with tenants in situ, the club provides a seamless solution for property owners looking to sell their residential properties while retaining tenancy agreements.
Key Benefits:
Streamlined Transactions: Selling a property with tenants already in place minimises disruptions for both landlords and tenants. It allows the buyer to inherit a property generating immediate rental income and minimising potential void periods.
Targeted Market: CGT matches properties directly with landlords, ensuring that it is marketed to the correct target audience. This focused approach ensures a quick and easy transaction.
Tenant Security: By maintaining existing tenancy agreements, CGT Investors' Club ensures stability for tenants, and removes the break in rental revenue.
Expertise in the Region: With extensive knowledge of the Gloucestershire and Cotswolds property markets, CGT understands the unique opportunities and attraction of these sought-after areas.
Secured Sale™: By using CGT’s revolutionary Secured Sale ™ process, sales are completed quickly (40 days on average), giving security and peace of mind to both buyer and seller.
Why Choose CGT Investors' Club?
Tailored Service: Whether you’re selling a single property or an entire portfolio, CGT provides personalised support to maximise income and minimise the time to completion.
Compliance Focus: CGT ensures all tenancies meet the latest legal and regulatory requirements, protecting everyone.
Time-Saving Solutions: Skip the hassle of tenant evictions or property preparation, simply sell as-is and enjoy a fast and reliable process.
CGT Investors' Club is the perfect partner for any landlord looking to buy or sell residential properties, with tenants in situ. 
Property Information
Flat 1 - Empty 
Flat 2 - Tenanted : £750pcm 
Flat 3 - Tenanted TBC
Flat 4 - Tenanted : £725pcm 
Flat 5 - Tenanted: £850pcm
 
 								 
 								 
 								 
 								 
 								 
 								 
 								