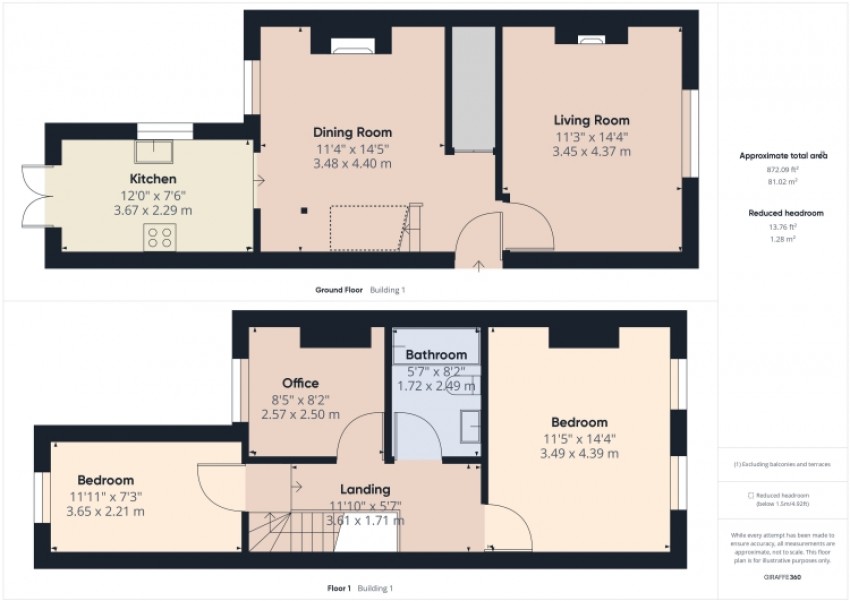
Presenting for sale this classic three bedroom semi-detached family home, located in Moorend Crescent. The property offers stunning period features and has been beautifully maintained throughout. It provides good family accommodation with two reception rooms, one boasting a log burner and the other with a feature fireplace, a refitted kitchen with views of the garden via the patio doors, allowing lots of natural light. In addition, there is a downstairs WC. Upstairs there are three bedrooms and a modern family bathroom. There is a well maintained landscaped rear garden, with a patio area perfect for evening meals and summer barbeques, along with maintained lawns and shrubbery. There is a large timber framed outbuilding with insulation, power and light with an ensuite offering either an additional living space or a perfect working from home office area.

Moorend Crescent is well positioned within walking distance of the Bath Road providing its cafe culture and amenities, along with easy access into Cheltenham town centre, local bus routes and both primary and secondary schools. The property is also positioned within easy access to the M5 and A417, providing excellent commuting links. This wonderfully presented property is a must see.

Welcome to Your Secured Sale™

At CGT, we’re revolutionising the way homes are bought and sold in the UK.

When you see the Secured Sale™ trademark, it means the property is marketed with transparency and crucial information upfront, ensuring a smoother, faster purchase.

Each Secured Sale™ includes a comprehensive legal pack that can be reviewed and approved by your legal team in just a few days.

This pack contains:

• Property searches, title plans, and material facts.

• Fixtures and fittings details.

• Certificates and covenants affecting the property.

Additionally, a transparent inspection report highlights any areas requiring further investigation, giving buyers confidence and clarity before making an offer.

Once a buyer is fully informed, they can make an offer. Upon acceptance, a non-refundable fee secures the agreement, locking in both buyer and seller. This ensures peace of mind and reduces the risk of delays or fall-throughs; a hallmark of the Secured Sale™ process.

Why Choose Secured Sale™?

Our mission is to transform the UK property market, reducing the average transaction time to just 37 working days (compared to 170 days for the traditional method).

A Secured Sale™ is not just a property transaction; it’s a commitment to transparency, trust, and efficiency. By providing buyers with all essential details upfront, we shift from traditional “subject to contract” sales to financially secure agreements that benefit everyone involved.

Discover the future of property transactions with Secured Sale™.



EPC Graph for 11 Moorend Crescent, Cheltenham, Gloucestershire, GL53 0EJ, UK

Get an expert valuation

Find out how much your property is worth