Elegant Edwardian Villa: A Perfect Blend of Classic Charm and Modern Living
This stunning Edwardian villa, with its stylish façade, has been meticulously renovated in 2023 to create a spacious and sophisticated family home.
Welcome to Your Secured Sale™
At CGT, we’re revolutionising the way homes are bought and sold in the UK.
When you see the Secured Sale™ trademark, it means the property is marketed with transparency and crucial information upfront, ensuring a smoother, faster purchase.
Each Secured Sale™ includes a comprehensive legal pack that can be reviewed and approved by your legal team in just a few days.
This pack contains:
• Property searches, title plans, and material facts.
• Fixtures and fittings details.
• Certificates and covenants affecting the property.
Additionally, a transparent inspection report highlights any areas requiring further investigation, giving buyers confidence and clarity before making an offer.
Once a buyer is fully informed, they can make an offer. Upon acceptance, a non-refundable fee secures the agreement, locking in both buyer and seller. This ensures peace of mind and reduces the risk of delays or fall-throughs; a hallmark of the Secured Sale™ process.
Why Choose Secured Sale™?
Our mission is to transform the UK property market, reducing the average transaction time to just 37 working days (compared to 170 days for the traditional method).
A Secured Sale™ is not just a property transaction; it’s a commitment to transparency, trust, and efficiency. By providing buyers with all essential details upfront, we shift from traditional “subject to contract” sales to financially secure agreements that benefit everyone involved.
Discover the future of property transactions with Secured Sale™.
Property details:
This extensive refurbishment seamlessly integrates original period features with contemporary comforts, resulting in an exquisite residence that spans approximately 3,000 sq ft across four floors.
Interior Features:
Upon entering, you are greeted by a grand hallway featuring a superb geometric staircase with fine archways. High ceilings with cornicing, elegant doors, and original fireplaces are just some of the period details that have been preserved.
Living Areas:
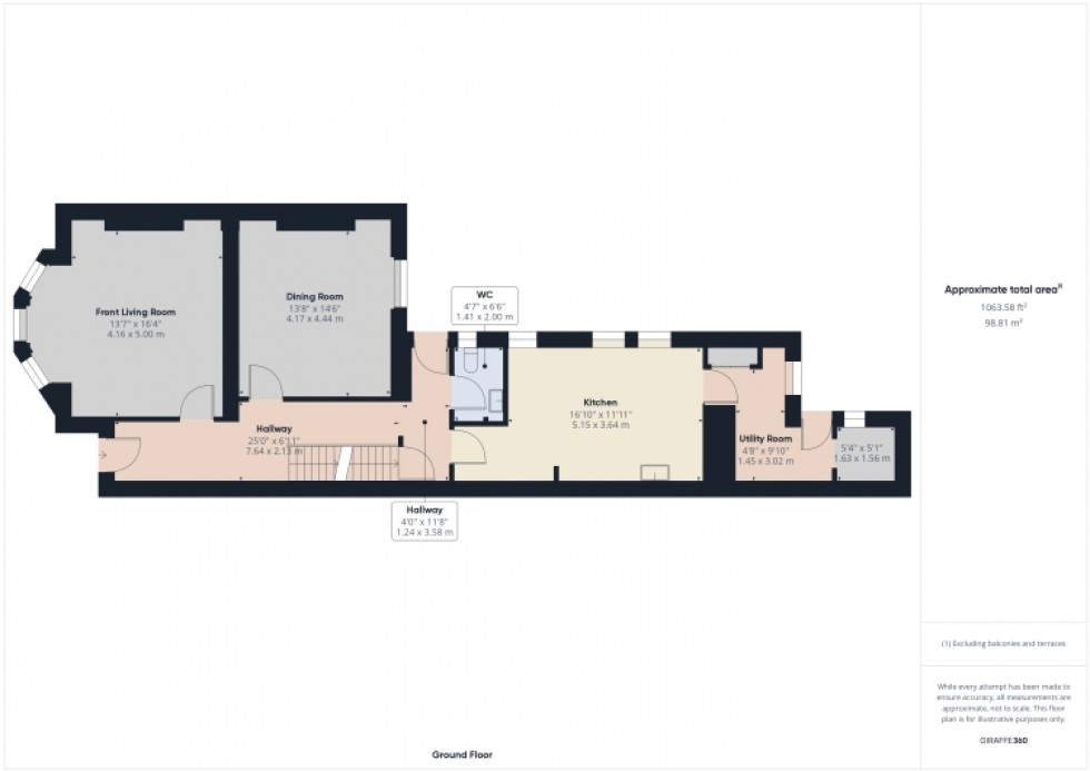
The ground floor offers two large receptions room,, perfect for entertaining. These rooms feature generous proportions and abundant natural light.
Kitchen and Family Space: At the rear of the house, the modern kitchen and family area serves as the heart of the home. It boasts contemporary units, Quartz worktops, integral appliances, and ample space for dining and relaxation. A convenient laundry room is situated beyond the kitchen.
Cellar and Cloakroom: Additional functional spaces include a cellar and a cloakroom, enhancing the home's practicality.
Bedrooms and Bathrooms:
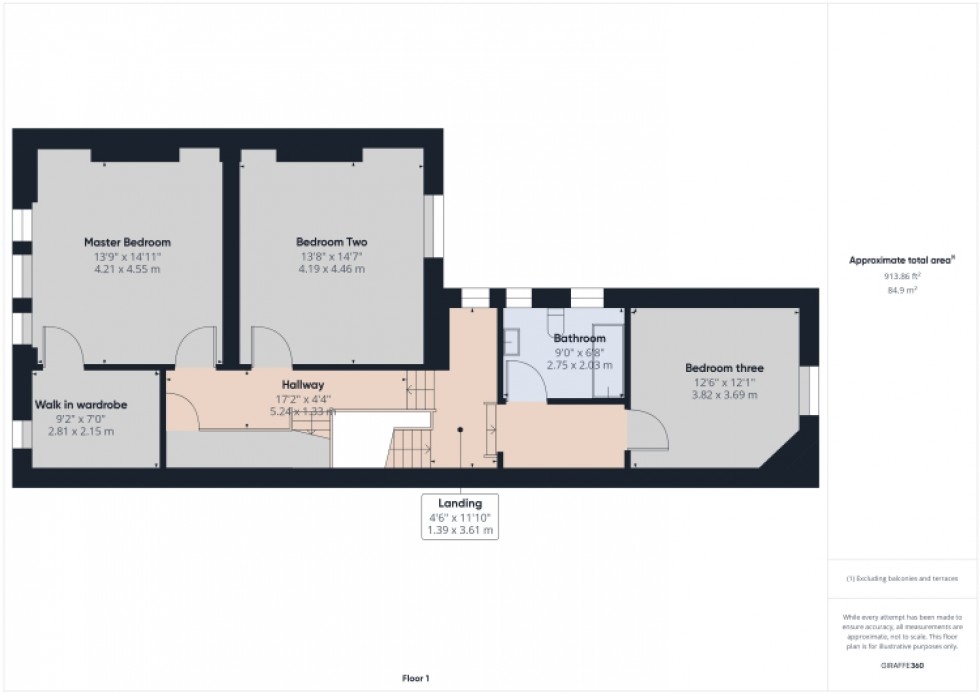
First Floor: The principal bedroom suite, located at the front of the house, offers a pleasant town view and space off for a walk-in wardrobe. Two more bedrooms and a luxurious family bathroom, complete with high-quality sanitary ware, are also found on this floor.
Second Floor: The fine staircase continues to the second floor, where you will find bedrooms four and five, along with a third bathroom. These versatile rooms are ideal for a home office, guest bedrooms, or a teenager's suite.
Modern Enhancements:
The villa features new UPVC double-glazed windows, new plumbing and wiring, and a re-roofed structure. Quality floor coverings and carpets are present throughout the home.
Exterior and Location:
The property includes good-sized enclosed rear gardens, landscaped with lawn and offering off-road parking accessible via a private lane. A short stroll from the town center, you will find the iconic Regal cinema and numerous sports facilities, including tennis, rowing, cricket, football, rugby, boules, cycling clubs, and a modern leisure center with two swimming pools.
Transport Links:
Transport connections are exceptional, with Worcestershire Parkway just 12 minutes away by train. The main-line commuter service provides access to Oxford (1 hour) and London Paddington (2 hours). Motorway links include the M5 at Tewkesbury and Worcester, the M42 at Redditch, and the M40 at Warwick. Additionally, the major centers of Worcester, Cheltenham, and Stratford-upon-Avon are all nearby.
Local Amenities:
Ideal for families, the home is close to top-rated schools, including the ‘Outstanding’ Prince Henry’s High School. Local shops, including Waitrose and Marks and Spencer Food Hall, as well as various restaurants, are within easy reach.
This is a rare opportunity to own a fantastic Edwardian townhouse in a highly convenient town location, offering substantial living space and a harmonious blend of historical elegance and modern amenities.
EPC : C
Tenure : Freehold
Council Tax: Band F
Current Market Rental Value: £3000
Achievable Yield: 7.2%
 
 								 
 								 
 								 
 								