This charming, three bedroom, semi-detached home, offers a blend of comfort and convenience, ideal for families and professionals alike. Situated in a peaceful residential area, the property boasts a spacious driveway, a well-maintained garden, and a contemporary interior with ample natural light. Its proximity to local amenities and transport links enhances its appeal.​

Welcome to Your Secured Sale™

At CGT, we’re revolutionising the way homes are bought and sold in the UK.

When you see the Secured Sale™ trademark, it means the property is marketed with transparency and crucial information upfront, ensuring a smoother, faster purchase.

Each Secured Sale™ includes a comprehensive legal pack that can be reviewed and approved by your legal team in just a few days.

This pack contains:

• Property searches, title plans, and material facts.

• Fixtures and fittings details.

• Certificates and covenants affecting the property.

Additionally, a transparent inspection report highlights any areas requiring further investigation, giving buyers confidence and clarity before making an offer.

Once a buyer is fully informed, they can make an offer. Upon acceptance, a non-refundable fee secures the agreement, locking in both buyer and seller. This ensures peace of mind and reduces the risk of delays or fall-throughs; a hallmark of the Secured Sale™ process.

Why Choose Secured Sale™?

Our mission is to transform the UK property market, reducing the average transaction time to just 37 working days (compared to 170 days for the traditional method).

A Secured Sale™ is not just a property transaction; it’s a commitment to transparency, trust, and efficiency. By providing buyers with all essential details upfront, we shift from traditional “subject to contract” sales to financially secure agreements that benefit everyone involved.

Discover the future of property transactions with Secured Sale™.

Property Information:

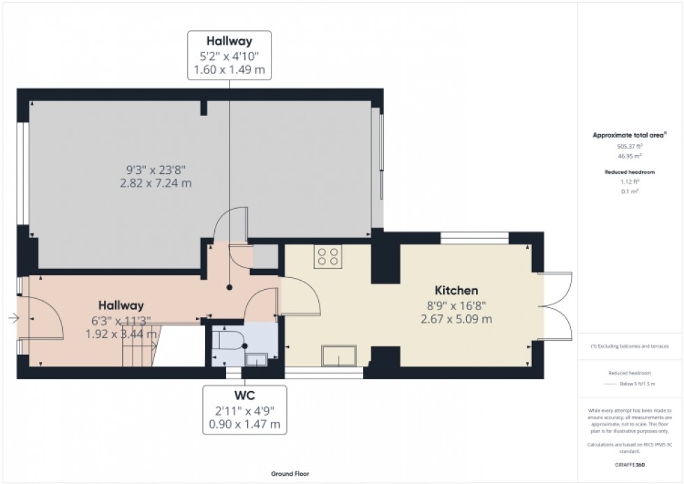
This deceptively spacious property delivers two delightful double bedrooms, plus a third smaller bedroom which could be utilised as a study or guest room.  There is one, functional family bathroom. The social space comprises an open plan kitchen diner and generous lounge space, ideal for relaxing and/or entertaining.  A garage with a drive delivers all of your parking requirements and there is a zen back garden space, well suited for al fresco dining on balmy summer evenings.

Transport Links:

Road Access: The M5 motorway is easily accessible, providing direct routes to major cities such as Birmingham and Bristol, enhancing commuting options.​

Public Transport: Tewkesbury Bus Services : Local bus routes connect Knights Way to various parts of Tewkesbury and surrounding areas, facilitating convenient public transport options.​

The Robin Bus Service: A flexible, bookable bus service operates in the area, offering tailored transport solutions to residents. ​

EPC: D

Council Tax: C

Tenure: Freehold


  • Three Bedroom Semi-Detached
  • Large Driveway
  • No Chain
  • Great transport links
  • Sold via CGT Secured Sale
  • Council Tax Band: C
Floorplan for 8 Knights Way, Tewkesbury, Gloucestershire, GL20 8DY, UK Floorplan for 8 Knights Way, Tewkesbury, Gloucestershire, GL20 8DY, UK Floorplan for 8 Knights Way, Tewkesbury, Gloucestershire, GL20 8DY, UK
EPC Graph for 8 Knights Way, Tewkesbury, Gloucestershire, GL20 8DY, UK

Get an expert valuation

Find out how much your property is worth