Champney, St. Cecilia Close, Kidderminster DY10

Sold STC Offers In Excess Of, - £40,000 (Leasehold)

1 1 1

A one bedroom apartment on St. Cecilia Close, in Kidderminster, providing a  superb investment opportunity with a strong 15% gross yield

Welcome to Your Secured Sale™

At CGT, we’re revolutionising the way homes are bought and sold in the UK.

When you see the Secured Sale™ trademark, it means the property is marketed with transparency and crucial information upfront, ensuring a smoother, faster purchase.

Each Secured Sale™ includes a comprehensive legal pack that can be reviewed and approved by your legal team in just a few days.

This pack contains:

• Property searches, title plans, and material facts.

• Fixtures and fittings details.

• Certificates and covenants affecting the property.

Additionally, a transparent inspection report highlights any areas requiring further investigation, giving buyers confidence and clarity before making an offer.

Once a buyer is fully informed, they can make an offer. Upon acceptance, a non-refundable fee secures the agreement, locking in both buyer and seller. This ensures peace of mind and reduces the risk of delays or fall-throughs; a hallmark of the Secured Sale™ process.

Why Choose Secured Sale™?

Our mission is to transform the UK property market, reducing the average transaction time to just 37 working days (compared to 170 days for the traditional method).

A Secured Sale™ is not just a property transaction; it’s a commitment to transparency, trust, and efficiency. By providing buyers with all essential details upfront, we shift from traditional “subject to contract” sales to financially secure agreements that benefit everyone involved.

Discover the future of property transactions with Secured Sale™.

CGT Sales has this excellent opportunity to acquire a well-presented one-bedroom apartment, which is ideally situated in a sought-after area of Kidderminster, within easy reach of local amenities, transport links, and the town centre.

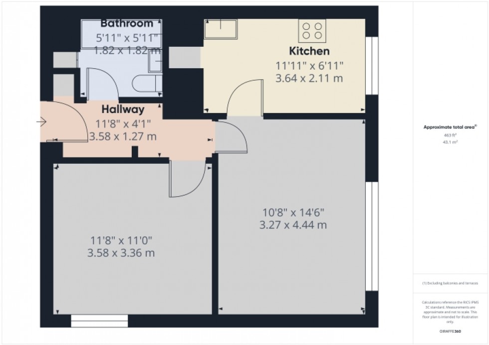
This spacious property offers comfortable and practical living accommodation, comprising:

• One generous double bedroom

• Inviting lounge area

• Modern fitted kitchen

• Contemporary bathroom

Perfect for professionals or small families, this apartment enjoys consistent rental demand thanks to its convenient location and well-maintained condition.

For investors, the property represents an outstanding buy-to-let opportunity, currently capable of achieving around £500 per calendar month, delivering an impressive 15% gross rental yield.

Set within a popular residential development, residents benefit from easy access to Kidderminster town centre, public transport links, local schools, and everyday conveniences, making it a highly desirable place to live.

Whether you’re looking to expand your portfolio or seeking a high-yield first investment, this apartment offers a rare combination of affordability, strong returns, and excellent location.

Tenure: Leasehold

Management Company : S M Properties

Lease Length: 90 years

Ground Rent:  £50 per annum 

Service Charge:  £2,370 per annum

EPC Rating: C

Council Tax Band: A

Parking : One Allocated space 


  • two lifts
  • sold via Secured Sale
  • 15% yield
  • Council Tax Band: A
Floorplan for Flat 43 Champney, St. Cecilia Close, Kidderminster, Worcestershire, DY10 1LW, UK
EPC Graph for Flat 43 Champney, St. Cecilia Close, Kidderminster, Worcestershire, DY10 1LW, UK

Get an expert valuation

Find out how much your property is worth